ELITE IMOBILIARE

By using this site, you agree to the use of cookies for analysis, personalized content and advertisements.Find more (in Romanian)

The offer is no longer valid For Sale

Apartament 2 camere în zona FABRICII

Cluj-Napoca, MARASTI (FABRICII)

ID: 106434

162,000

Property primary


2 Rooms

floor 6/6

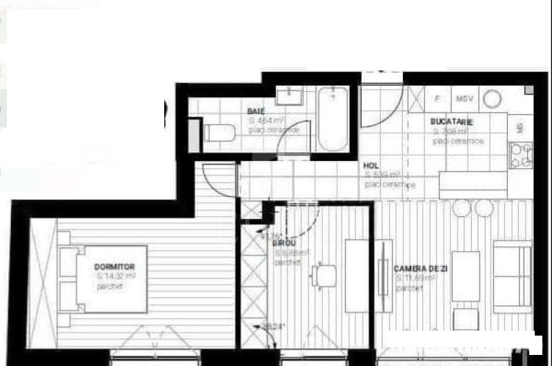
53 m2

1 Bathroom

subteran

Details

  • separate entries
  • comfort 1
  • etaj 6/6
  • no balconies 2
  • orientation sud
  • central heating
  • modern finish
  • windows double glazed
  • front door metalica
  • laminate flooring
  • exterior
  • modern tiles
  • fully furnished

Description

ELITE offers for sale apartment with 2 rooms in new construction, located in the area FABRICII. The apartment has an usable area of 53 mp and is positioned on the floor 6, in apartment block with height regime parter plus 6 etaje, built in 2021, exterior insulation. It is an detached apartment, confort 1, with separate kitchen, one bathroom, 2 balconies. The interior is modern finish.It is for sale fully furnished. The property also has own central,double glazing windows, laminate flooring,modern tile/sandstone,metal front door. An advantage of this property is that it has underground garage.

Did you like this property?

Talk directly to me!

Seulean Simona

Reply to the listing

Interested above this property? Then send us an email.

Related properties

Display properties