ELITE IMOBILIARE

By using this site, you agree to the use of cookies for analysis, personalized content and advertisements.Find more (in Romanian)

The offer is no longer valid For Sale Exclusive

Apartament 2 camere în zona Lidl

Cluj-Napoca, MARASTI ( Lidl)

ID: 110329

135,000

Property primary


2 Rooms

floor 2/6

54 m2

1 Bathroom

under the block

Details

  • detached
  • comfort 1
  • etaj 2/6
  • no balconies 1
  • orientation EST
  • central heating
  • semi-finished
  • windows double glazed
  • front door metalica
  • exterior

Description

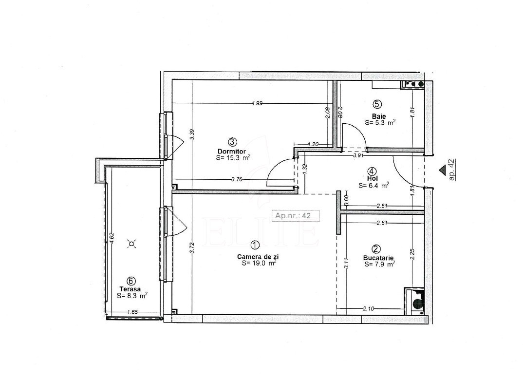
ELITE offers for sale apartment with 2 rooms in new construction, located in the neighborhood MARASTI in the area Lidl. The apartment has an usable area of 54 mp and is positioned on the floor 2, in apartment block with height regime P+6, built in 2023, exterior insulation. It is an semi-detached apartment, confort 1, with separate kitchen, one bathroom, one balcony. The interior is semifinisat. The property also has own central,double glazing windows, metal front door. An advantage of this property is that it has under the block garage.

Did you like this property?

Talk directly to me!

Morocazan Zsuzsa

Reply to the listing

Interested above this property? Then send us an email.

Related properties

Display properties