ELITE IMOBILIARE

By using this site, you agree to the use of cookies for analysis, personalized content and advertisements.Find more (in Romanian)

The offer is no longer valid For Sale

Apartament 2 camere în zona PLOPILOR

Cluj-Napoca, PLOPILOR

ID: 115179

260,000

Property primary


2 Rooms

floor 810 cu lift

55 m2

1 Bathroom

subteran

Details

  • detached
  • comfort increased comfort
  • etaj 810 cu lift
  • no balconies 1
  • central heating
  • floor heating
  • semi-finished
  • windows double glazed
  • front door metalica
  • exterior

Description

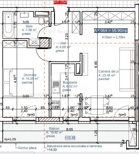
ELITE offers for sale apartment with 2 rooms in new construction, located in the neighborhood PLOPILOR in the area PLOPILOR. The apartment has an usable area of 56 mp and is positioned on the floor 1, in apartment block, built in 2023, exterior insulation. It is an semi-detached apartment, confort increased, with open space kitchen, one bathroom, one balcony. The interior is semifinisat. The property also has own central,double glazing windows, metal front door. An advantage of this property is that it has underground garage.

Did you like this property?

Talk directly to me!

Raceanu Loredana

Reply to the listing

Interested above this property? Then send us an email.

Related properties

Display properties