ELITE IMOBILIARE

Prin utilizarea acestui site, sunteți de acord cu utilizarea cookie-urilor pentru analize, conținut personalizat și reclame.Aflați mai multe

Oferta nu mai este valabilă Vânzare

Apartament 2 camere în zona HOREA

Cluj-Napoca, CENTRAL (HOREA)

ID: 115212

165.000

Caracteristici


2 Camere

Etaj 1/6 CU LIFT

55 m2

1 Băi

-

Detalii

  • semidecomandat
  • Confort 1
  • Etaj 1/6 CU LIFT
  • Număr balcoane 1
  • centrală proprie
  • încălzire pardoseală
  • semifinisat
  • ferestre termopan
  • ușă intrare metalica
  • izolatie exterioara

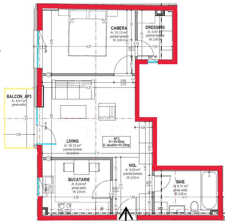
Descriere

ELITE va ofera spre vanzare apartament cu 2 camere in construcție nouă, situat in cartierul CENTRAL zona HOREA. Apartamentul are o suprafata utila de 55 mp si este pozitionat la etajul 1, in bloc apartamente, construit in 2024, cu izolație exterioară. Este un apartament semidecomandat, confort 1, cu bucatarie separata, o baie, un balcon. In interior este semifinisat. Imobilul dispune si de centrală proprie, încălzire în pardoseală,ferestre termopan,usa de intrare metalica. Apartamentul este compartimentat in bucatarie separat, living cu trecere spre dormitor, hol, o baie si o terasa. Termenul de predare ar fi decembrie 2025. Parcarea subterana este 10.000 euro cu tva inclus.

Vă place această proprietate?

Vorbiți direct cu mine!

Seulean Simona

Trimite un mesaj

Vă interesează această proprietate? Atunci trimite-ne un e-mail.

Oferte similare

Afișați proprietățile