ELITE IMOBILIARE

Prin utilizarea acestui site, sunteți de acord cu utilizarea cookie-urilor pentru analize, conținut personalizat și reclame.Aflați mai multe

Oferta nu mai este valabilă Vânzare

Apartament 2 camere în zona Zorilor

CLUJ-NAPOCA, ZORILOR

ID: 64241

89.460

Caracteristici


2 Camere

Etaj 3/10

56 m2

1 Băi

-

Detalii

  • decomandat
  • Confort sporit
  • Etaj 3/10
  • Număr balcoane 1
  • orientare est
  • centrală proprie
  • semifinisat
  • ferestre termopan
  • ușă intrare metalica
  • sapa
  • izolatie exterioara

Descriere

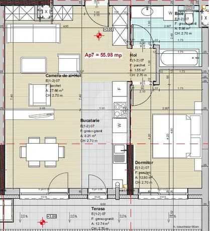
Elite ofera spre vanzare apartament cu 2 camere in cartierul ZORILOR. Imobilul este situat in zona Zorilor, in constructie noua, este decomandat si are suprafata utila de 56 mp. Imobilul are o baie, un balcon si este orientat est. Este finisat semifinisat, are sapa, tamplarie exterior termopan, tamplarie interior fara, usa intrare metalica. Locuinta are centrala termica si este izolata termic exterior. Termenul de predare august 2021.Garajul este 6000 plus tva. Avansul este de 50 la suta restul de 50 la suta se achita la predare. Terasa este de 12 mp.

Vă place această proprietate?

Vorbiți direct cu mine!

Seulean Simona

Trimite un mesaj

Vă interesează această proprietate? Atunci trimite-ne un e-mail.

Oferte similare

Afișați proprietățile