ELITE IMOBILIARE

Prin utilizarea acestui site, sunteți de acord cu utilizarea cookie-urilor pentru analize, conținut personalizat și reclame.Aflați mai multe

Vânzare

Apartament 3 camere în zona IULIUS MALL

Cluj-Napoca, GHEORGHENI (IULIUS MALL)

ID: 114584

340.000

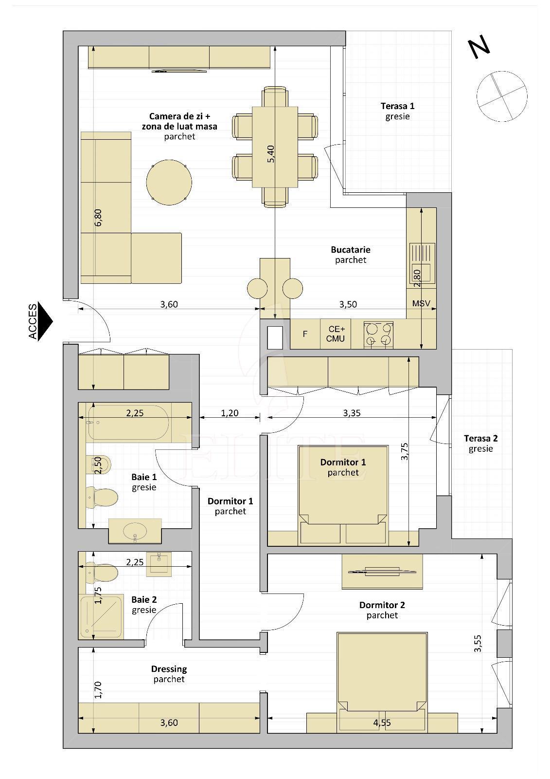
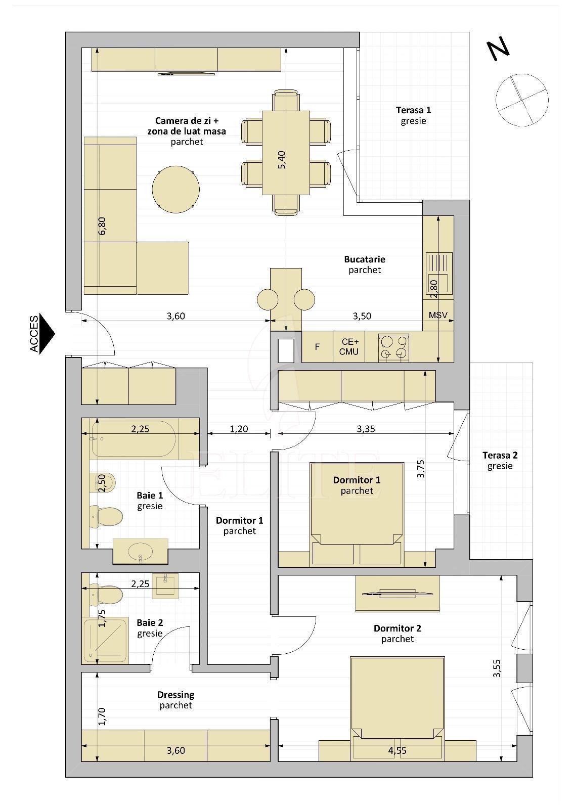
Caracteristici


3 Camere

Etaj parter/7

90 m2

2 Băi

subteran

Detalii

  • decomandat
  • Confort sporit
  • Etaj parter/7
  • Număr balcoane 2
  • centrala_de_bloc
  • finisat modern
  • ferestre termopan
  • ușă intrare metalica
  • parchet laminat
  • izolatie exterioara
  • faianță/gresie modernă
  • mobilat complet

Descriere

ELITE va ofera spre vanzare apartament cu 3 camere in construcție nouă, situat in cartierul GHEORGHENI zona IULIUS MALL. Apartamentul are o suprafata utila de 90 mp si este pozitionat la parter, in bloc apartamente, construit in 2015, cu izolație exterioară. Este un apartament decomandat, confort sporit, cu bucatarie separata, 2 bai, 2 balcoane. In interior este finisat modern.Se vinde mobilat complet. Imobilul dispune si de centrala de bloc,ferestre termopan,parchet laminat,faianta/gresie modernă,usa de intrare metalica. Apartamentul este localizat in vecinatatea mijloacelor de transport in comun da. Un avantaj al acestui imobil este ca dispune de garaj subteran. Apartamentul este situat intr-o zona rezidentiala langa Iulius Mall in bloc nou. Este total decomandat are o suprafata generoasa de 90 mp plus 2 terase, are 2 bai 3 camere bucatarie. Se vinde complet mobilat si utilat. Parcarea subterana este contra cost, respectiv suma de 20.000 euro.

Vă place această proprietate?

Vorbiți direct cu mine!

Seulean Simona

Trimite un mesaj

Vă interesează această proprietate? Atunci trimite-ne un e-mail.

Oferte similare

Afișați proprietățile