ELITE IMOBILIARE

Prin utilizarea acestui site, sunteți de acord cu utilizarea cookie-urilor pentru analize, conținut personalizat și reclame.Aflați mai multe

Vânzare

Apartament 3 camere în zona FABRICII

Cluj-Napoca, MARASTI (FABRICII)

ID: 114132

213.040

Caracteristici


3 Camere

Etaj 5/10

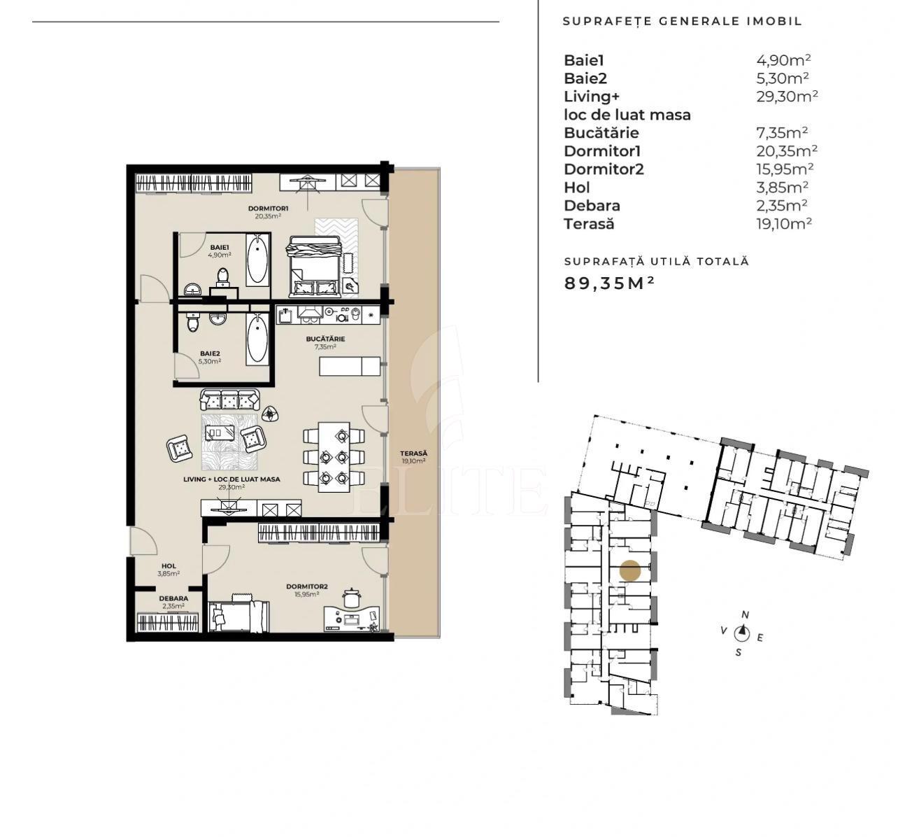
80.4 m2

2 Băi

-

Detalii

  • semidecomandat
  • Confort 1
  • Etaj 5/10
  • Număr balcoane 1
  • centrală proprie
  • semifinisat
  • ferestre termopan
  • ușă intrare metalica
  • izolatie exterioara

Descriere

ELITE va ofera spre vanzare apartament cu 3 camere in construcție nouă, situat in cartierul MARASTI zona FABRICII. Apartamentul are o suprafata utila de 80.4 mp si este pozitionat la etajul 5, in bloc apartamente, construit in 2024, cu izolație exterioară. Este un apartament semidecomandat, confort 1, cu bucatarie open space, 2 bai, un balcon. In interior este semifinisat. Imobilul dispune si de centrală proprie,ferestre termopan,usa de intrare metalica. Pretul este plus tva. Apartamentul are o terasa de 8 mp.

Vă place această proprietate?

Vorbiți direct cu mine!

Seulean Simona

Trimite un mesaj

Vă interesează această proprietate? Atunci trimite-ne un e-mail.

Oferte similare

Afișați proprietățile