ELITE IMOBILIARE

Prin utilizarea acestui site, sunteți de acord cu utilizarea cookie-urilor pentru analize, conținut personalizat și reclame.Aflați mai multe

Oferta nu mai este valabilă Vânzare

Apartament 4 camere în zona ZORILOR

Cluj-Napoca, ZORILOR

ID: 112039

260.000

Caracteristici


4 Camere

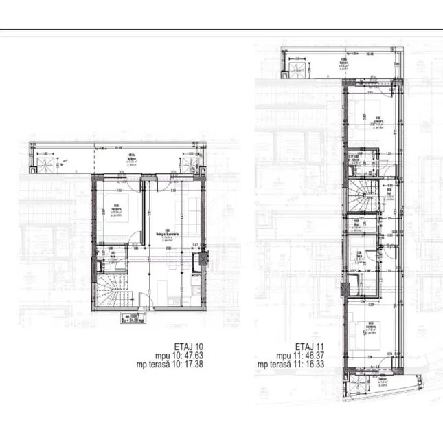
Etaj 10 si 11 cu scara interioara

94 m2

3 Băi

subteran

Detalii

  • semidecomandat
  • Confort 1
  • Etaj 10 si 11 cu scara interioara
  • Număr balcoane 3
  • centrală proprie
  • încălzire pardoseală
  • semifinisat
  • ferestre termopan
  • ușă intrare metalica
  • izolatie exterioara

Descriere

ELITE va ofera spre vanzare apartament cu 4 camere in construcție nouă, situat in cartierul ZORILOR zona ZORILOR. Apartamentul are o suprafata utila de 94 mp si este pozitionat la 10 si 11 cu scara interioara, in bloc apartamente, construit in 2023, cu izolație exterioară. Este un apartament semidecomandat, confort 1, cu bucatarie open space, 3 bai, 3 balcoane. In interior este semifinisat. Imobilul dispune si de centrală proprie, încălzire în pardoseală,ferestre termopan,usa de intrare metalica. Un avantaj al acestui imobil este ca dispune de garaj subteran. Apartamentul este situat intr-un complex rezidential nou. Este compartimentat la primul nivel astfel: living impreuna cu bucataria plus dormitor, hol, baie, terasa iar la etajul 11 cu scara interioara are 2 dormitoare, 2 bai, spatiu de depozitare, 2 terase. Cele 3 terase au impreuna 33,71 mp. Pretul este plus tva apartamentul se vinde de pe societate comerciala.

Vă place această proprietate?

Vorbiți direct cu mine!

Seulean Simona

Trimite un mesaj

Vă interesează această proprietate? Atunci trimite-ne un e-mail.

Oferte similare

Afișați proprietățile